
Zajímá mě technická stránka staveb i to, jak vypadají. Věnuji se návrhům, projektové dokumentaci, vizualizacím a interiérům od prvních skic až po finální prezentaci. U každého projektu se snažím hledat chytrá, funkční a vizuálně čistá řešení.















Text
text
text
tex
tex


2025





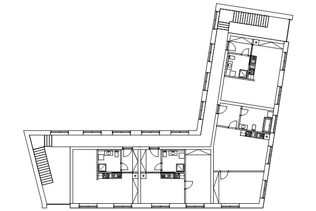
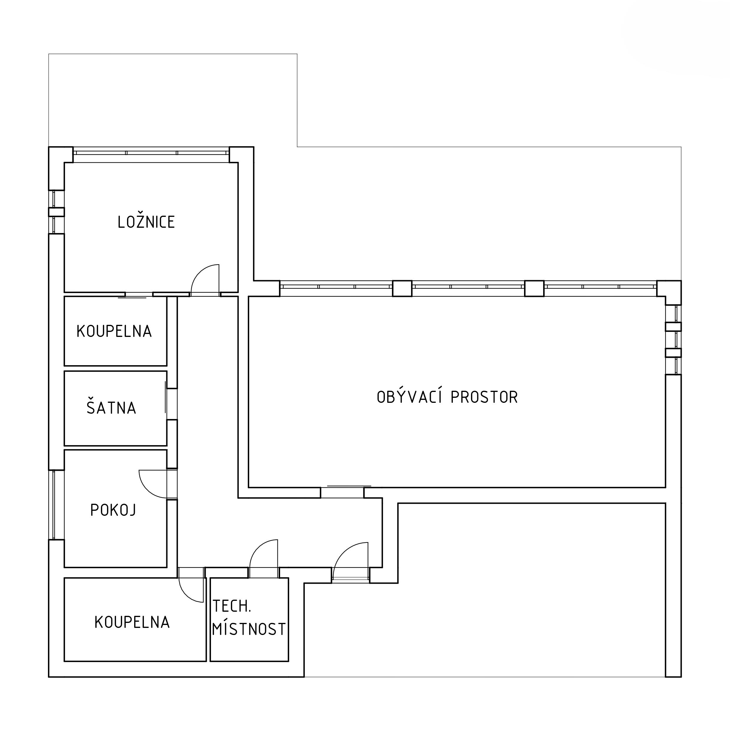
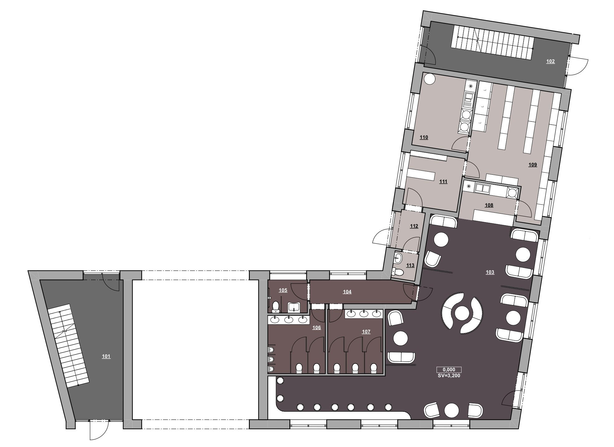
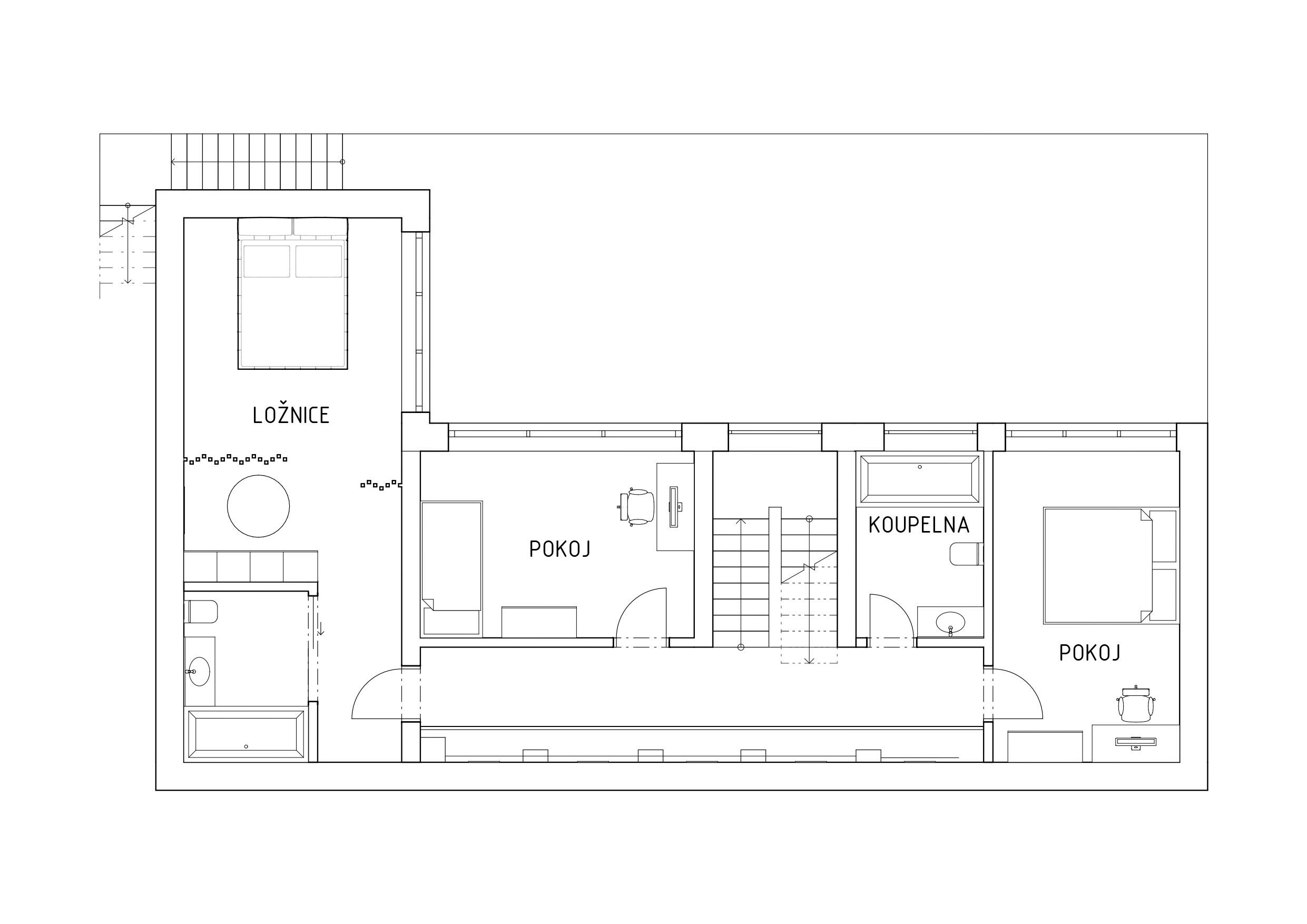
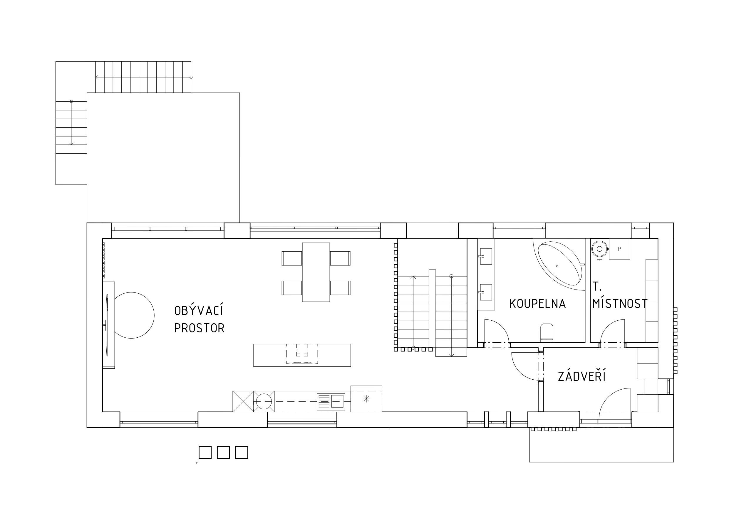
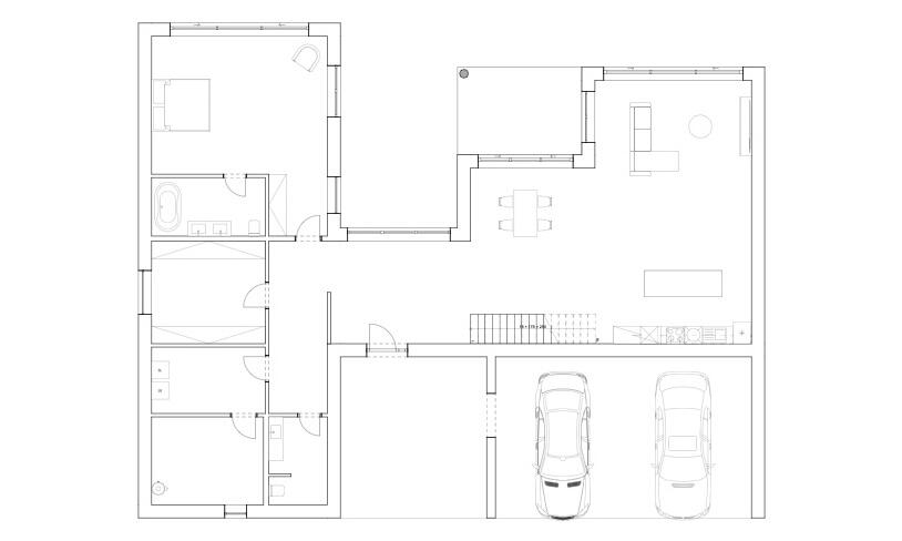
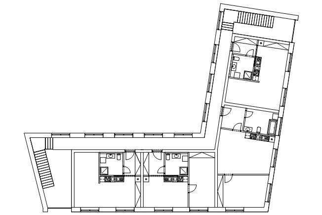
66.00m2 . . Obývací prostor
18.67m2 . . . . . . Ložnice
5.90m2 . . . . . .Koueplna
5.46m2 . . . . . . . Šatna
10.82m2 . . . . . . . Pokoj
9.80m2 . . . . . .Koupelna
5.40m2 . . .Tech. místnost
21.95m2 . . . . . . .Chodba
144m2 . . Užitečná plocha

Text
text
text
tex
tex

SŠ 2024

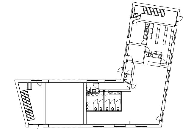
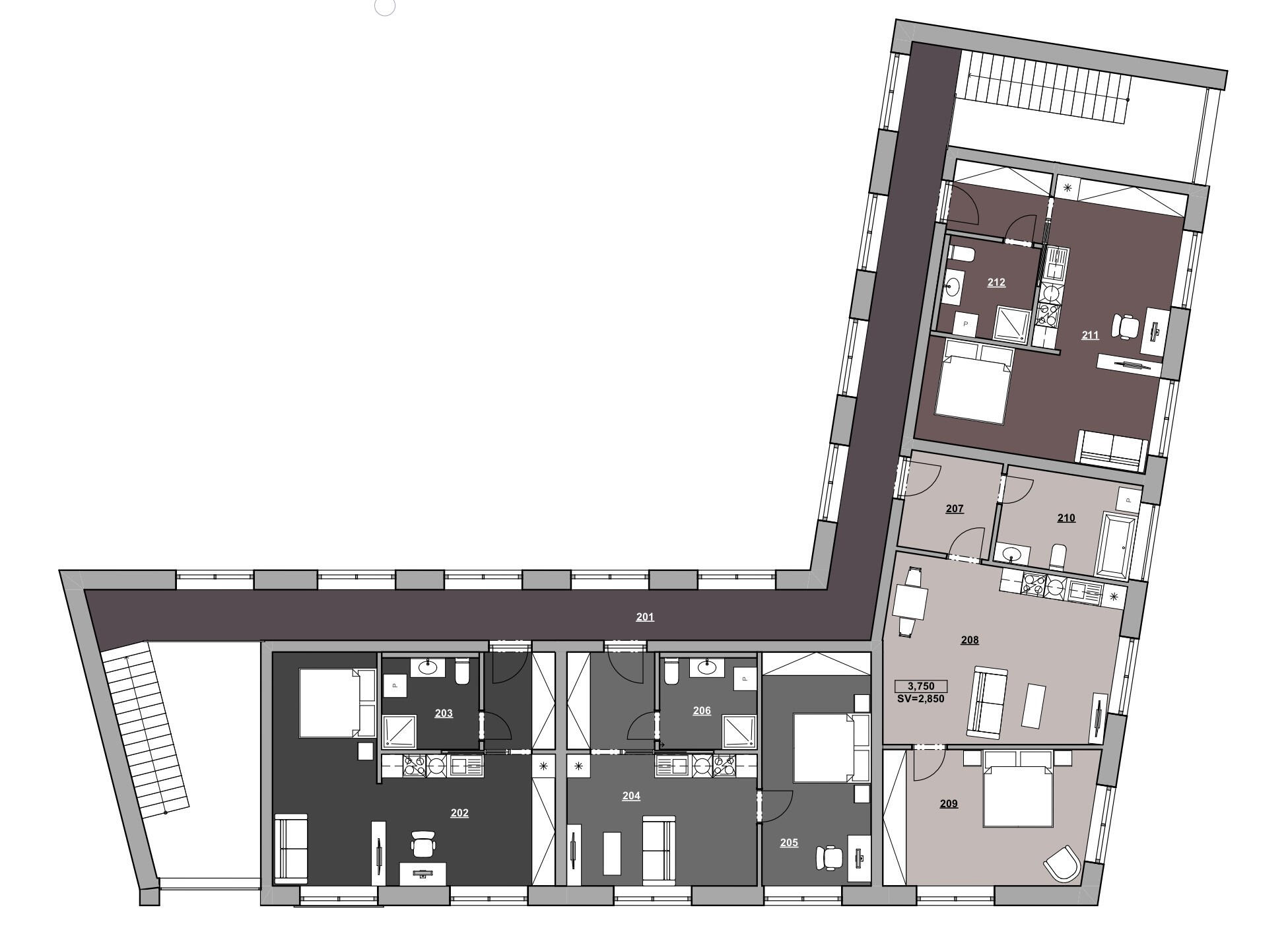
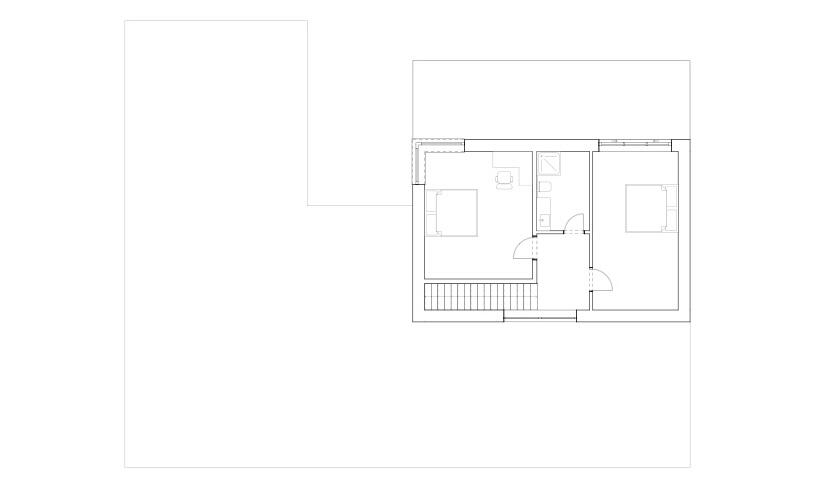
2.NP

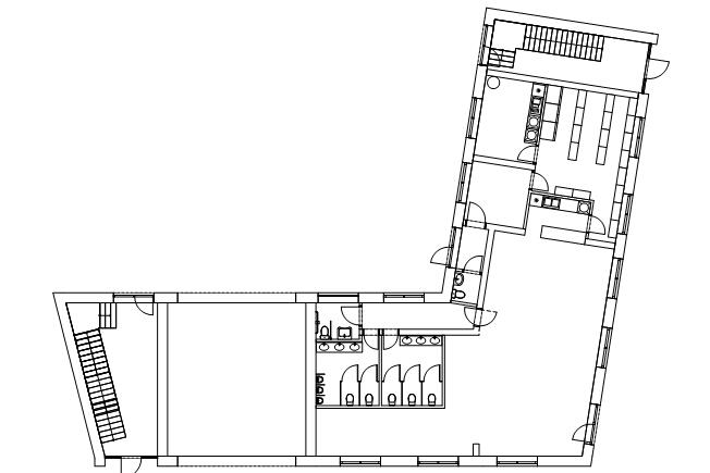
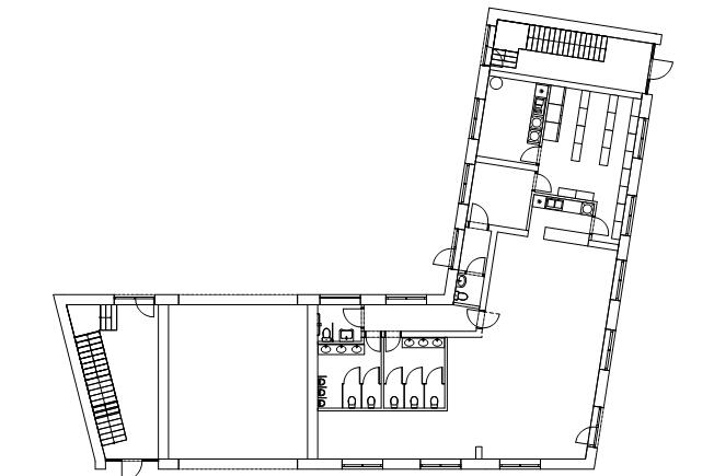
1.NP

1.S


SŠ 2023

2025
SŠ 2023